

全國免費客服電話 0537-2558089 郵箱:zhuoligk@163.com
手機:0537-2558089
電話:0537-2558089
地址:濟寧市任城區南張工業園
發布時間:2013-06-18 07:44:22 人氣:1656
托輥結構優化設計與工藝可靠性研究
|
|
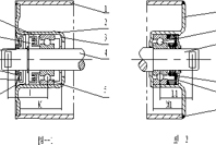
非接觸式的迷宮軸封防塵級托輥
|
接觸式的多唇軸封防水級托輥
|
||
|
序號
|
零件名稱
|
材質
|
零件名稱
|
材質
|
|
1
|
托輥管體
|
Q235-A
|
軸承座
|
ST-13
|
|
2
|
軸承座
|
ST-13
|
大游隙球軸承
|
組合件
|
|
3
|
內密封環
|
塑膠
|
托輥軸
|
45
|
|
4
|
托輥軸
|
A3
|
多唇軸封
|
柔性高分子材料
|
|
5
|
大游隙球軸承
|
組合件
|
擋圈
|
ST-13
|
|
6
|
迷宮密封動環
|
尼龍
|
托輥管體
|
Q235-A
|
|
7
|
迷宮密封靜環
|
尼龍
|
|
|
|
8
|
彈簧擋圈
|
65Mn
|
|
|
|
9
|
組合密封件1
|
08F
|
|
|
|
10
|
組合密封件2
|
工程塑料
|
|
|
|
11
|
組合密封件3
|
08F
|
|
|
下一篇:吊桶的技術參數和作用
相關推薦